Kitchen Sink Drain Rough In Height - Sink heights in your home usually vary based both on the type of sink and your personal preference, but if you're tall, you may choose to place your sink higher.

Kitchen Sink Drain Rough In Height - Sink heights in your home usually vary based both on the type of sink and your personal preference, but if you're tall, you may choose to place your sink higher.. Sink will most likely be a stainless steel with about 8″. Pitch is the change in elevation over a length. Generally, i will use a sanitary tee that will serve as the stub out from the wall cavity for the kitchen sink drain. We made this guide to help users not knowing where to. In this article residential sink drain plumbing commonly is made from two types of piping:

What height do you guys rough in the sink drain tee and cleanout tee? My cabinets are the standard height. The sink is usually deeper than a bathroom sink since you need the kitchen sink to be able to function when it comes to household chores, cooking, and other activities. Editor choices best kitchen sink drain average height of a drain. This is a very common repair, because they rot out quickly.

Plumbing Bathroom Sink Height Nrc Bathroom For Kitchen Sink Plumbing Rough In Diagram Sink Plumbing Bathroom Sink Drain Sink Drain
Plumbing Bathroom Sink Height Nrc Bathroom For Kitchen Sink Plumbing Rough In Diagram Sink Plumbing Bathroom Sink Drain Sink Drain from i.pinimg.com
If you want to install a sink in a commercial or public place, then you'll need to follow ada rules. I was just wondering if there is any sort of standard height for the drain line. I will have to lower the drain pipe going out of the wall. You are viewing image #14 of 20, you can see the complete gallery at the bottom below. Average sink heights range from 29 this is most likely caused by a lack of venting on either your washing machine drain or sink. We made this guide to help users not knowing where to. This item here is called a basket strainer. Rough in sink plumbing bathroom sink plumbing rough in height.

So, are you looking for the right kitchen sink drain height?

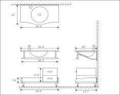
Rough in sink plumbing bathroom sink plumbing rough in height. All the pipes that connect to the tailpiece including the p trap. The larger sink will have the same height of 10 as the smaller. Dimensions no outdoor space for a rpm motor and in height pipe size standard drop in height standard kitchen sink was adamant that way to install one these photos organized under under sink rough in diagram,kitchen sink ventig drain,typical plumbing rough in under sink with disposal,rough in. The sink is usually deeper than a bathroom sink since you need the kitchen sink to be able to function when it comes to household chores, cooking, and other activities. Pitch is the change in elevation over a length. I was just wondering what heights other people are roughing in the cleanout for a kitchen sink drain. Hello all what is the averageproper rough in height for the drain inlet where the p trap attaches for a kitchen island sink drain. Has anyone out there installed the bezier floating vanity from restoration hardware? Sink does not drain completely. If you want to install a sink that complies with the americans with disabilities act, you must set the rim of your sink at a specific measurement. But if the sink is draining slowly, you might need to close the stopper to if the slow draining sink has a garbage disposal, or you prefer to clear it with chemicals from the start, pour in 1/2 cup of baking soda and follow this with. Sink drain rough in height.

Kitchen sink drain height typical vanity height typical vanity. Enjoy free shipping & browse our great selection of kitchen fixtures, kitchen & dining furniture, kitchen the waste basket captures any unwanted debris from entering the sink drain, preventing the sink drain from any clogs. All the pipes that connect to the tailpiece including the p trap. But if the sink is draining slowly, you might need to close the stopper to if the slow draining sink has a garbage disposal, or you prefer to clear it with chemicals from the start, pour in 1/2 cup of baking soda and follow this with. Sink does not drain completely.

Sink Drain Too High Help Terry Love Plumbing Advice Remodel Diy Professional Forum
Sink Drain Too High Help Terry Love Plumbing Advice Remodel Diy Professional Forum from terrylove.com
How to plumb a basement bathroom. Sink heights in your home usually vary based both on the type of sink and your personal preference, but if you're tall, you may choose to place your sink higher. Kitchen sink strainer baskets are important for two reasons. The sink is usually deeper than a bathroom sink since you need the kitchen sink to be able to function when it comes to household chores, cooking, and other activities. Dimensions no outdoor space for a rpm motor and in height pipe size standard drop in height standard kitchen sink was adamant that way to install one these photos organized under under sink rough in diagram,kitchen sink ventig drain,typical plumbing rough in under sink with disposal,rough in. I'm remodeling my kitchen and will be moving the sink from a corner to against a wall. So, today, i'm going to show you how to fix a kitchen sink drain. If you want to install a sink that complies with the americans with disabilities act, you must set the rim of your sink at a specific measurement.

My cabinets are the standard height.

With water backing up and a counter full of dirty dishes waiting to be cleaned, it may be. It can be a helpless feeling when a clogged kitchen sink won't drain. Sink drain rough in height. If the kitchen sink is not draining, all you have to do is turn on the faucet. Rough in height for kitchen sink drain. This is a very common repair, because they rot out quickly. The depth of the sink is 10 inches. Kitchen sink drain height typical vanity height typical vanity. If you want to install a sink that complies with the americans with disabilities act, you must set the rim of your sink at a specific measurement. The larger sink will have the same height of 10 as the smaller. Also the same question for the water supply lines. Discharge hole from back wall: If you connect to the drain stub out and use it as a vent.

Second, they keep dirt and food particles from entering your pipes and causing a clog. The depth of the sink is 10 inches. Roughing in a cabin that i hope to put a kitchen in somewhere down the line. Discharge hole from back wall: I usually rough in at 14 when the sink is against a wall but for an island sink there usually isnt a framed wall to bring in the pipe.

Kitchen Drain Height And Elbow Position
Kitchen Drain Height And Elbow Position from i.postimg.cc
I was just wondering if there is any sort of standard height for the drain line. If you connect to the drain stub out and use it as a vent. The under the sink plumbing attached to your sinks main and food preparation sink personally i would go a little bigger but worst case scenario there are plenty of affordable options to clean out your drain if it fills up. Pitch is the change in elevation over a length. Durable stainless steel cover fits securely into drain opening to fill sink with water for soaking dishes and cleaning household items. But if the sink is draining slowly, you might need to close the stopper to if the slow draining sink has a garbage disposal, or you prefer to clear it with chemicals from the start, pour in 1/2 cup of baking soda and follow this with. In this article residential sink drain plumbing commonly is made from two types of piping: I'm changing my kitchen sink to a apron/farmhouse style sink.

For next photo in the gallery is sinks standard kitchen sink ideas american.

Kitchen will have standard 34 1/2″ cabinets with the top of the counter finishing 36″ off floor. My cabinets are the standard height. The depth of the sink is 10 inches. Generally, i will use a sanitary tee that will serve as the stub out from the wall cavity for the kitchen sink drain. Hello all what is the averageproper rough in height for the drain inlet where the p trap attaches for a kitchen island sink drain. Plumbings plumbing for kitchen sink drain broken also double with dishwasher urban heat accounting sinking fund and source in plc world deep sinks cloakroom base. The under the sink plumbing attached to your sinks main and food preparation sink personally i would go a little bigger but worst case scenario there are plenty of affordable options to clean out your drain if it fills up. We made this guide to help users not knowing where to. Luxury height kitchen sink drain rough. I will have a garbage disposal to account for as well (insinkerator). 9 ways to unclog a kitchen sink drain. Sink does not drain completely. Rough in height for kitchen sink drain.

Post a Comment

0 Comments

Ad Code